6260 River Overlook Dr NW
Atlanta, GA 30328


  • 8 Bedrooms
  • 7.5 Bathrooms
  • 5,940 Sq/ft
  • MLS: 10699733

Details

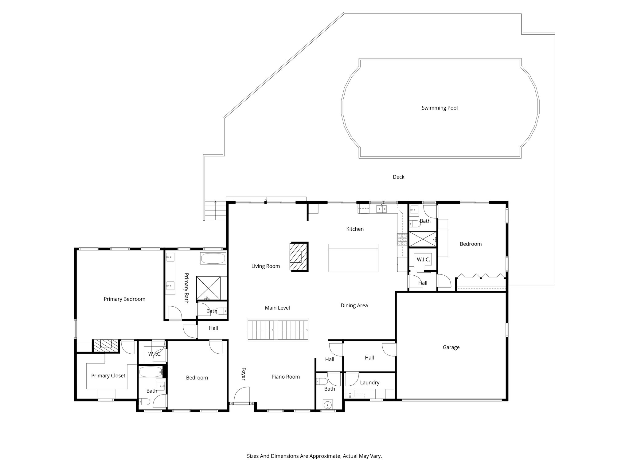
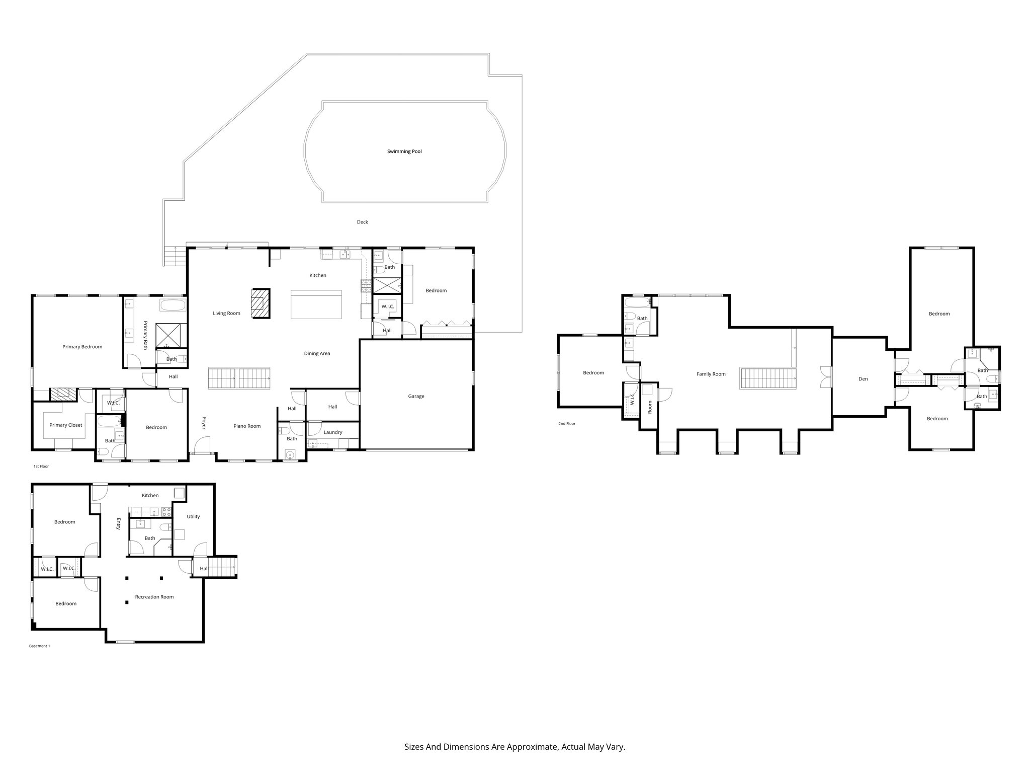
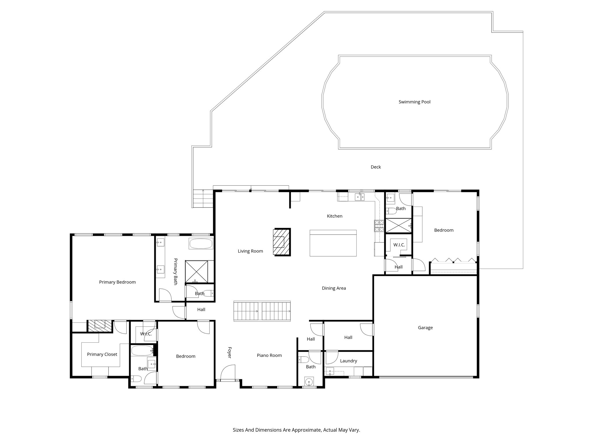
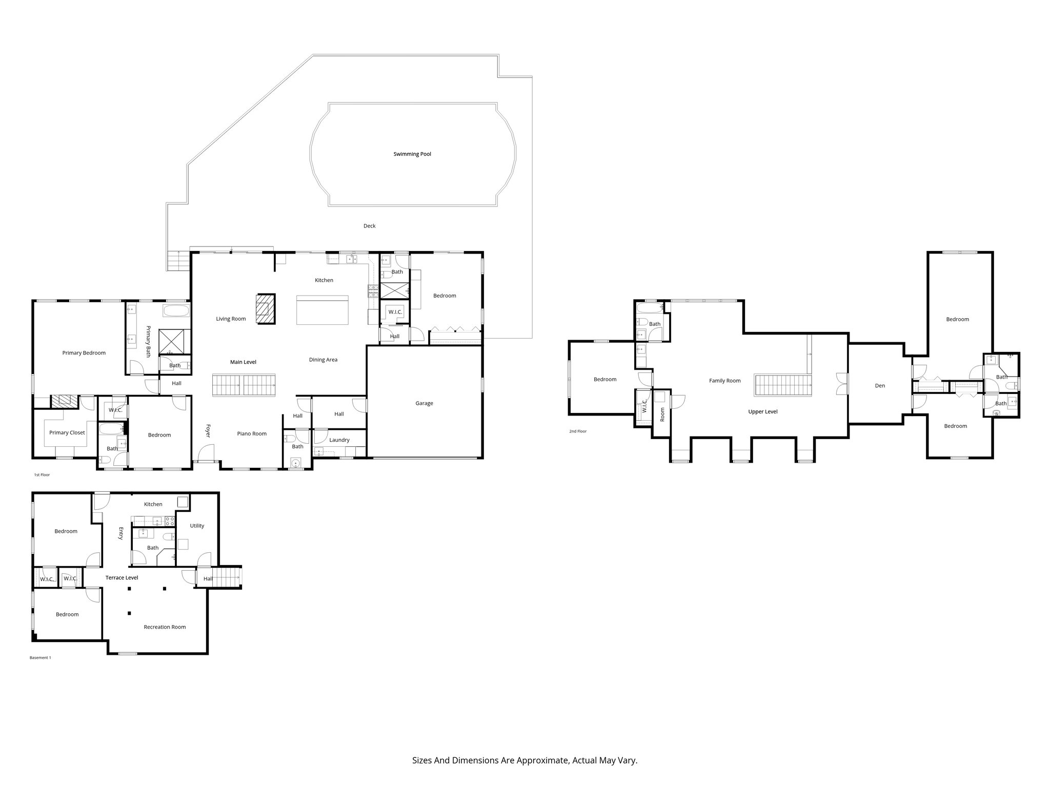
Tucked away in the prestigious Riverside neighborhood, this new construction home blends serene privacy with refined modern elegance. Conveniently located near Highways 400 and 285 and just five minutes from the Chattahoochee River and Trail, it offers easy access to hiking, biking, and scenic outdoor recreation. The main level features three bedrooms, each with its own full bath, including a third with direct pool access and its own kitchenette, ideal for guests or multi-generational living. Rich hardwood floors and a stunning double-sided fireplace create a warm and inviting atmosphere. The gourmet kitchen is filled with natural light and showcases floor-to-ceiling cabinetry, a statement island, Bosch appliances, and a custom wine wall. The main kitchen and island feature exquisite marble countertops enhanced with a luxurious MORETM anti-etch and anti-stain treatment, backed by a 10-year warranty for lasting beauty and peace of mind. The primary suite offers a marble fireplace, morning bar, custom closet, and spa-inspired bath. Upstairs includes three additional bedrooms, two baths, and a versatile bonus room with wet bar. The terrace level is designed for exceptional comfort and flexibility, featuring a spacious family room, bedroom, full bath, and a full kitchen, with walkout access to the patio and firepit. The private backyard oasis is highlighted by a beautiful pool surrounded by lush landscaping, perfect for relaxing or entertaining. Complete with smart home features, EV charger, Pella windows, and quality roofing and siding, this home is meticulously crafted for elegant living and effortless entertaining. We look forward to welcoming you.

Images

Videos

Floor Plans