4901 Bainbridge Ct SW
Lilburn, GA 30047


  • 5 Bedrooms
  • 4.2 Bathrooms
  • MLS: 7756629

Details

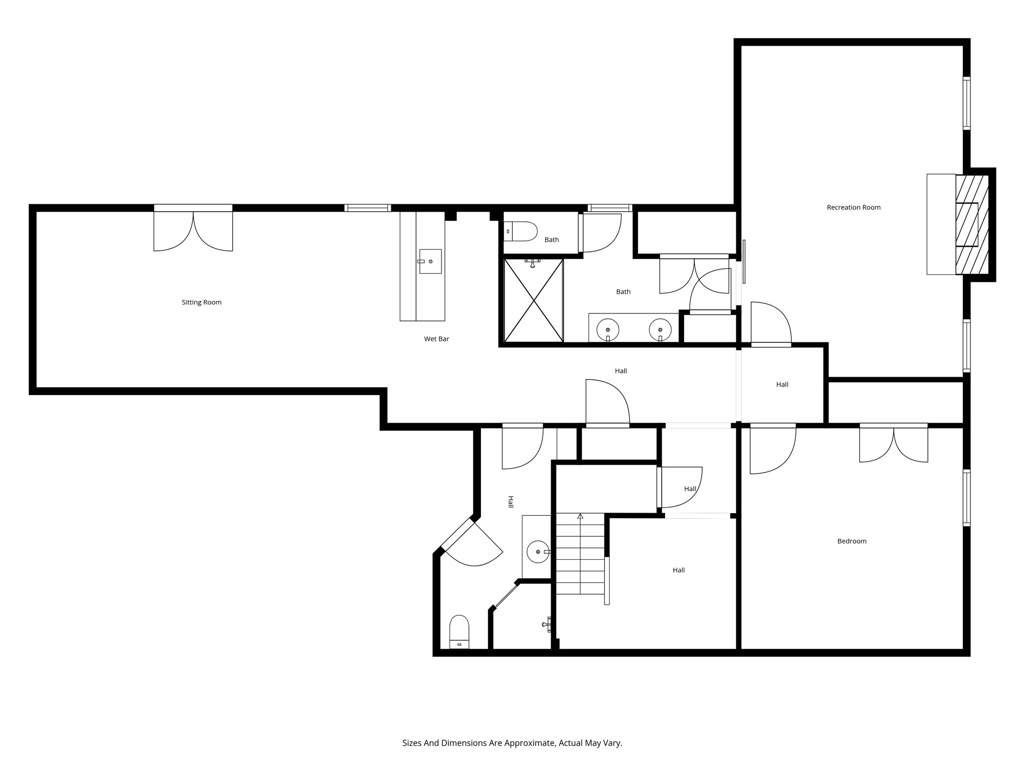
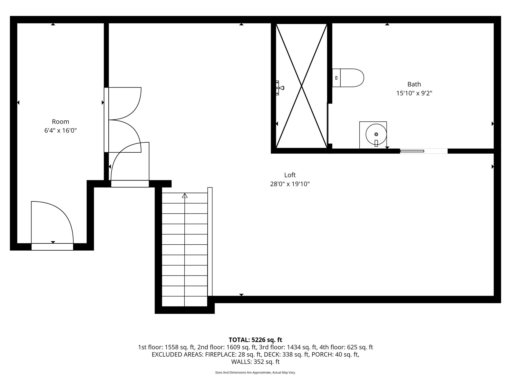
Experience refined living in this exquisitely renovated colonial estate, located in the heart of Lilburn within the highly coveted Parkview school district, just a short walk to Camp Creek Elementary and Parkview High School. Built on nearly an acre of land, this property boasts over 5,000 square feet of meticulously finished living space. The expansive layout includes grand living and dining areas, stunning hardwood floors, elegant crown molding, masterfully crafted judges paneling, and two fireplaces. The home features 4 generously sized bedrooms and 5 bathrooms, each designed with high-end finishes and stone countertops. Additionally, there are 3 versatile multi-purpose rooms perfect for a private gym, home schooling, office, media lounge, guest accommodations, or creative space. The master suite is a true retreat, featuring a jetted bathtub, a separate invigorating shower, and luxurious finishes. The kitchen is a chef's dream with high-end appliances, herringbone-patterned tile flooring, a spacious walk-in pantry. The fully finished basement, with its own private entrance and abundant natural light, is ideal for guests, multi-generational living, or additional entertainment space. Surrounded by mature trees and complemented by a tranquil creek, the expansive backyard offers both beauty and privacy. The elevated 10-foot deck provides breathtaking views of the natural surroundings, creating an exceptional setting for entertaining or quiet relaxation. A spacious two-car garage and expansive grounds complete this remarkable offering. This home represents a rare opportunity to own a truly distinguished residence that combines elegance, scale, and modern comfort in one of Lilburn's most desirable locations.

Images

Floor Plans