100) ? false : true; navIsShown = (window.pageYOffset > heroHeight) ? true : false; triggerTransitions = window.pageYOffset > (heroHeight / 2) ? true : false; if (navIsOpen && !atTop && !navIsShown) navIsOpen = false; ">
Toggle Navigation
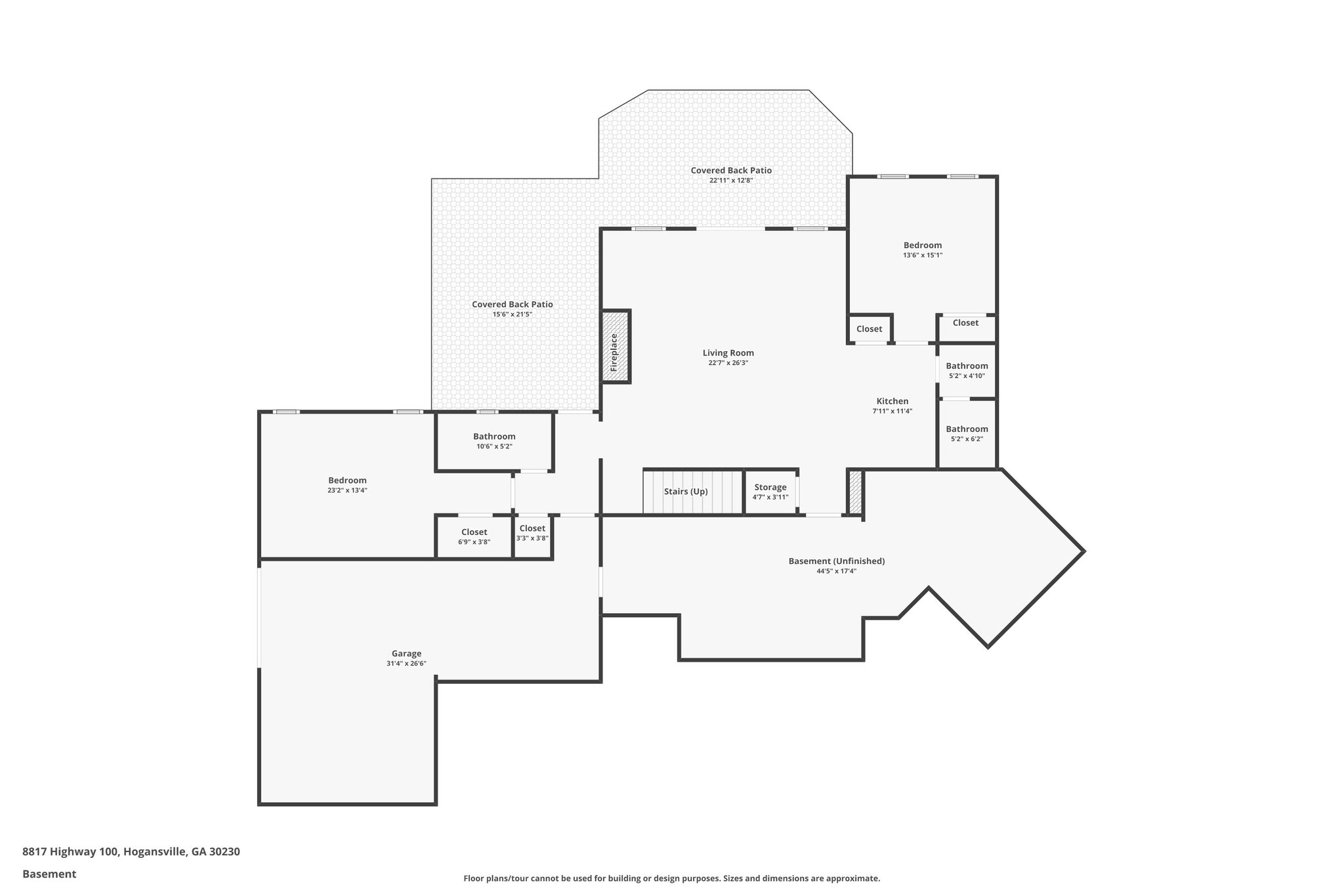
8817 Highway 100, Hogansville, GA 30230
Images
Videos
Floor Plans
3D Tour
Map
Previous Slide
Next Slide
View Gallery
3D Tour
Slideshow
Photo Grid
Hide
Previous
Next
8817 Highway 100
Hogansville, GA 30230
Images
Show more
Slideshow
Photo Grid
Hide
Previous
Next
Videos
Floor Plans
Slideshow
Photo Grid
Hide
Previous
Next
3D Tour